| NIVEAU | PIÈCE | SURFACE |
- * Provisions sur charges : 0 € par mois
(régularisation annuelle) - Honoraires charge locataire : 9 000 €
- Dépôt de garantie : 22 500 €
Local commercial
MALAKOFF (92240)
- 245 m²
- NC pièce(s)
- NC chambre(s)
- NC
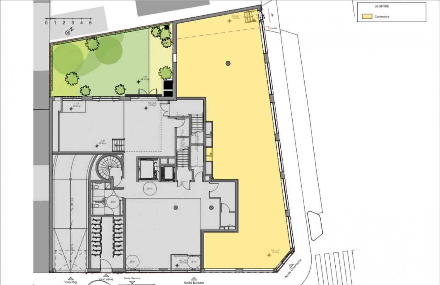
SAINT JOSEPH IMMOBILIER vous propose EN EXCLUSIVITÉ à la location, un local commercial de 245 m² situé à Malakoff, au cœur du Grand Paris. Bénéficiant d’un emplacement stratégique, ce local est à seulement 750 mètres du périphérique parisien et à proximité immédiate de la future ligne 15 du Grand Paris Express ainsi que des lignes 13, 4 et T6 du métro. Ce bien, commercialisé en monopropriété, dispose d’un linéaire de façade de 35 mètres, offrant une excellente visibilité. Il est compatible avec tous types de commerces et équipé d’une extraction aux normes, idéale pour la restauration. Possibilité d'obtenir une licence 4. Grâce à son emplacement d'angle, ce local est parfait pour diverses activités commerciales telles que magasin bio, prêt-à-porter, cabinet médical ou dentaire, boutique de décoration, bricolage, ou encore salon de coiffure. Ne manquez pas cette opportunité unique dans un secteur à fort potentiel. Contactez Saby SADAKA au 06 73 79 69 63 pour plus d'informations.
Notre barème d'honoraires
Ce bien ne figure plus au catalogue car il a été loué.
cette annonce à un ami
Veuillez réessayer à nouveau










