| NIVEAU | PIÈCE | SURFACE |
Maison
IDRON (64320)
- 200 m²
- 6 pièce(s)
- 5 chambre(s)
- 1000 m²
Saint Joseph immobilier vous propose une magnifique maison des années 80 avec une belle piscine située dans un quartier des plus agréables. Cette maison offre un charme unique grâce à son style architectural contemporain et sa belle piscine qui en fait le parfait havre de paix.
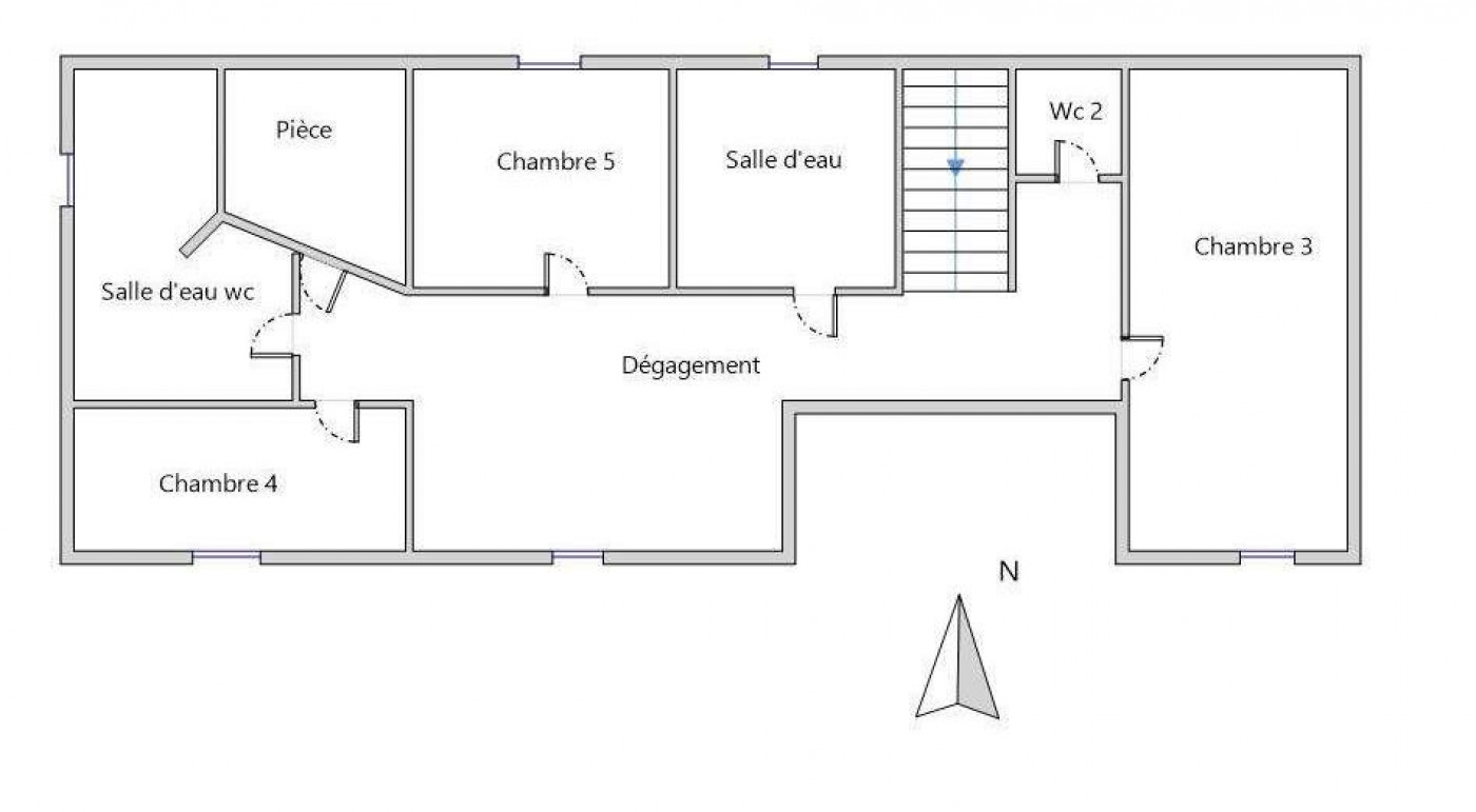
Dès l'entrée, vous serez séduits par l'atmosphère chaleureuse et conviviale du salon avec un poêle. Les grandes baies vitrées laissent entrer une abondance de lumière naturelle, illuminant chaque recoin de la maison. La cuisine, entièrement équipée, est un véritable paradis pour les cuisiniers. Les deux chambres du bas sont équipés de placards. Sur le même palier il y a une salle de bains ainsi que des wc .
Au premier étage vous trouvez une mezzanine spacieuse qui peut servir de bureau,une suite parentale avec dressing et SDB ainsi que deux chambres. Un grand sous-sol de deux pièces et un garage complètent ce bien. Le vaste jardin paysager est parfait pour les amateurs de plein air et de calme et agrémenté d’une piscine au brome de 5mx4m.
La maison est également idéalement située. Proche des principaux axes routiers, vous pourrez facilement accéder aux commerces et au centre de Pau.
Contact Sabine Laurentie : 06 31 10 08 41
Notre barème d'honoraires
* Honoraires charge vendeur.
Ce bien ne figure plus au catalogue car il a été vendu.

Montant estimé des dépenses annuelles d'énergie pour un usage standard: entre 2 290,00€ et 3 140,00€ par an.
Prix moyen des énergies indexés au 02/10/2023 (abonnement compris)
cette annonce à un ami
Veuillez réessayer à nouveau




















